Apartamento 3 dorms à venda Avenida Doutor Sezefredo Azambuja Vieira, Marechal Rondon - Canoas
R$ 100,00 Condomínio*
R$ 8,33 IPTU Anual*
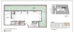
142m² privativos
203m² totais
3 dorms
1 suíte
1 banheiro
2 vagas
R$ 8.099 /m²
Sobre o imóvel
Marechal Rondon - Canoas
Lançamento: 25/10/2022
Construção: 25/01/2026
Características do imóvel
Chuveiro a gás
Chuveiro com aquecimento a gás eficiente.
Características do empreendimento Grand Park Moinhos















